Last Updated On   Tue Dec 01 14:54:12 IST 2020

Ramesh Pandurang Kotkar
Authorized Person, D S Greens Phase II

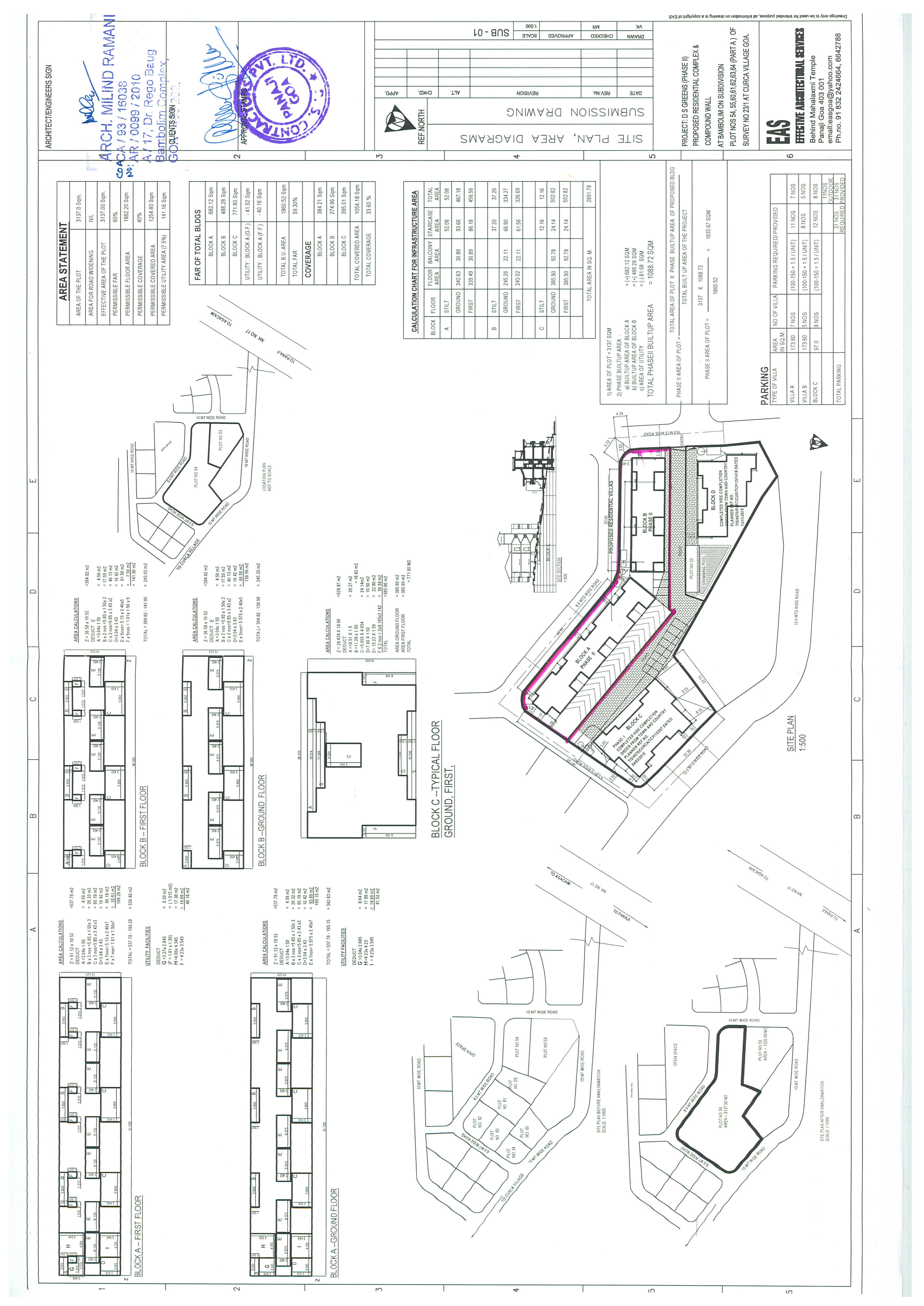
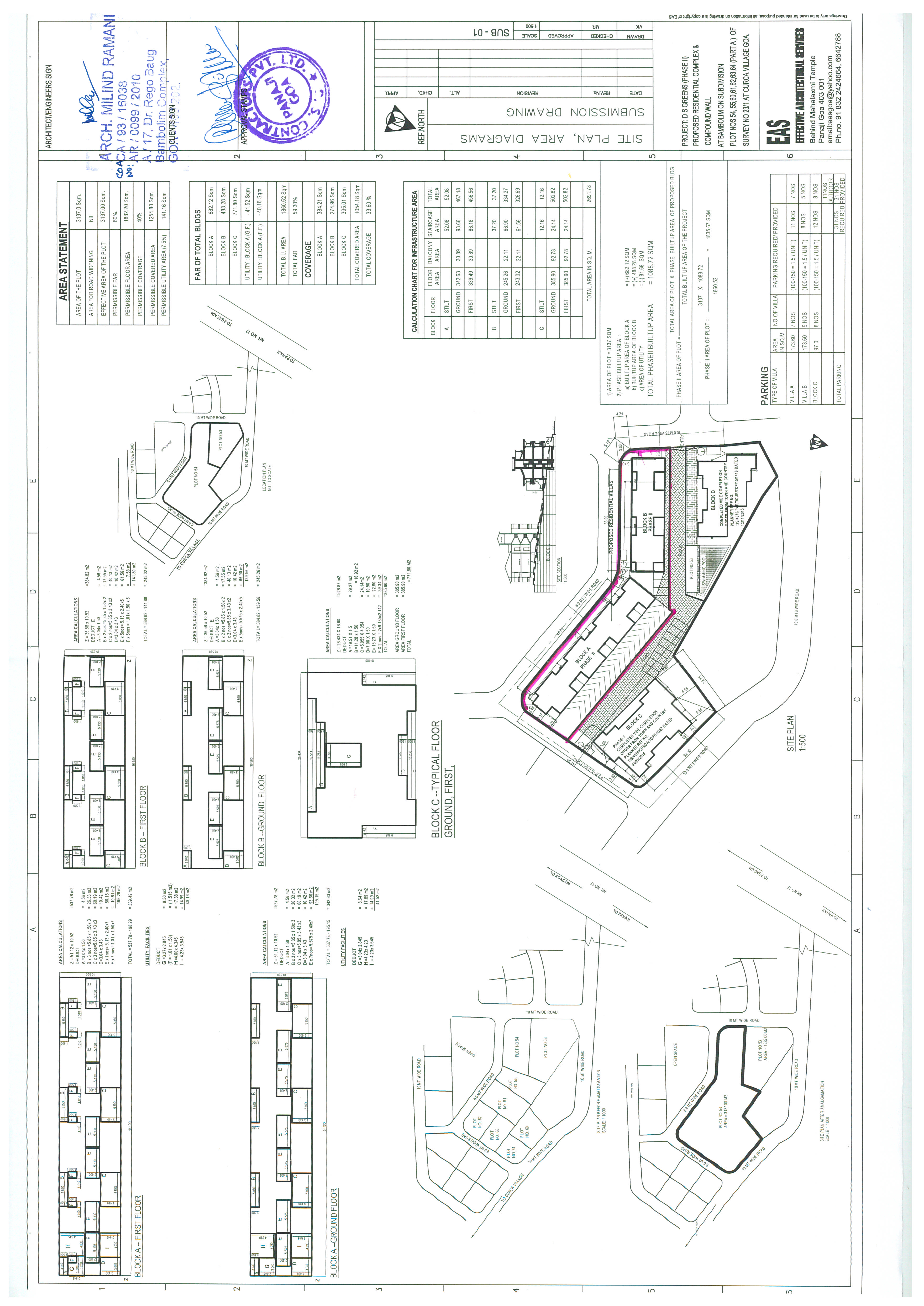
D S Greens Phase II

Plot Nos 54,55,60,61,62,63,64( Part A) of Sy No. 23/1 , Curca, Bambolim , North Goa

RERA Registration No. : PRGO06190827 Registration Type : Company

Date of Registration :

Wed Jun 19 11:27:52 IST 2019

Total Area of Project Land :

1835.67

Project Type :

Residential/Group Housing

Project Start Date :

01-05-2019

Project End Date :

31-01-2020

Project Status :

Completed

Completion Certificate:

Occupancy Certificate:

Chalta No.:

23/1

P.T. Sheet No:

23/1

Total Open Area (Sq Mtr) :

1176.5

Total Covered Area(Sq Mtr) :

659.17

State :

Goa

District:

North Goa

Village:

Curca

Estimated Cost of Project:

617.40

No. of Garage :

12

Area of Garage :

150.0

No. of Open Parking :

0

Area of Open Parking :

0.0

No. of Covered Parking :

0.0

Area of Covered Parking :

0.0

No. of Covered Parking Sold :

0

No. of Open Parking Sold :

0

Project Funding:

Self Financed

Project Description

Residential Villas

Promoter Details

Type of Promoter Name E-mail Mobile Number
Company D S Contractors Pvt Ltd dsc[dot]goa[at]gmail[dot]com 8888863995

Authorized Person Details

Name Mobile E-mail Address
Ramesh Pandurang Kotkar 8888044777 dsc[dot]goa[at]gmail[dot]com Office No.601, 6th Floor, GERA Imperium Grand , Patto, Panaji, North Goa, Goa

Inventory Details

Type of Inventory No of Inventory Carpet Area
(Sq Mtr)
Area of exclusive balcony/verandah
(Sq Mtr)
Area of exclusive open terrace if any
(Sq Mtr)
Villas 11 882.25 106.0 468.0

Quarterly status of the project

No Of Inventory Completed
No Of Inventory Booked
No Of Inventory Sold

Associated Vendor


Project Architects

Architect Name Email Address Pin Code Year of Establishment
Milind Ramani easgoa[at]yahoo[dot]com A/17, Dr.REgo Bug, , Bambolim Complex 403202 1996

Structural Engineers

Engineer Name Email Address Pin Code Year of Establishment
Pradnya Mallaya pradnyap[at]eas[dot]org[dot]in 7 SBI QTRS, Miramar, Panaji 403001 2004

External Development Work

Road System Water Supply Sewage and Drainage System Electricity Supply Transformer And Sub Station Solid Waste Management And Disposal
Self Development     % Completed Government Authority     % Completed Self Development      % Completed Government Authority      % Completed Self Development      % Completed
Financial Year Financial Year Start Financial Year End Status Report Update Date
FY2019-2020 01-May-2019 30-Apr-2020 annual report.pdf 27-Mar-2021

Approval Taken From Reference No Date Updated On

Pending Approvals

Building Details

Completion Percentage


















Please Select Street Lighting Yes/No









Document

Project Documents

Declaration

Photographs