Last Updated On   Fri Sep 29 13:07:27 IST 2023

Premnath Sawant
Authorized Person, Saldanha Annette Grande

Saldanha Annette Grande

Cobravaddo , Calangute , North Goa

RERA Registration No. : PRGO06190760 Registration Type : Company

Date of Registration :

Wed Jun 19 11:33:28 IST 2019

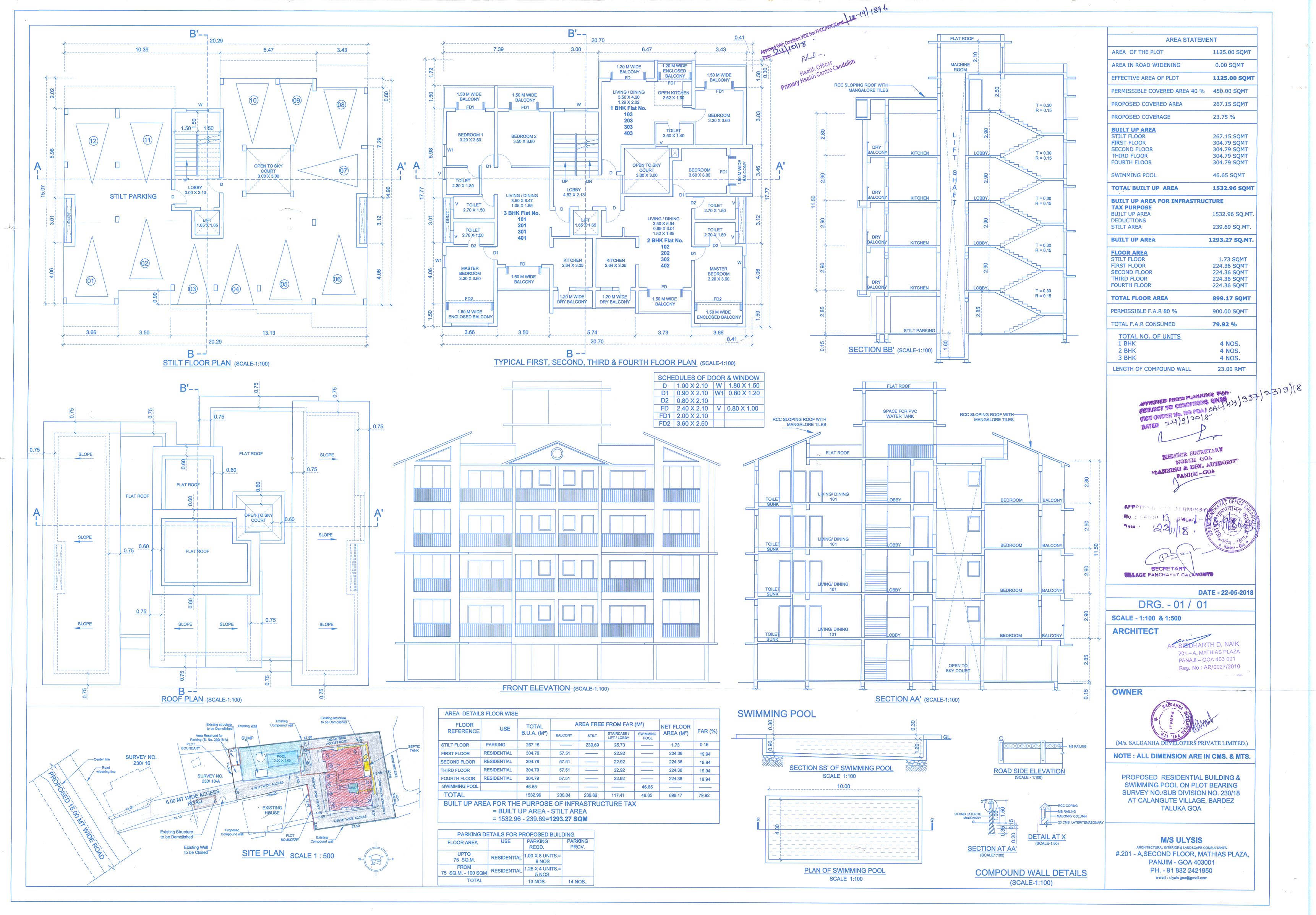
Total Area of Project Land :

1125.0

Project Type :

Residential/Group Housing

Project Start Date :

20-02-2019

Project End Date :

30-12-2023

Project Status :

Completed

Completion Certificate:

Occupancy Certificate:

Chalta No.:

P.T. Sheet No:

Total Open Area (Sq Mtr) :

0.0

Total Covered Area(Sq Mtr) :

267.15

State :

Goa

District:

North Goa

Village:

Estimated Cost of Project:

No. of Garage :

12

Area of Garage :

239.69

No. of Open Parking :

2

Area of Open Parking :

23.93

No. of Covered Parking :

12.0

Area of Covered Parking :

239.69

No. of Covered Parking Sold :

12

No. of Open Parking Sold :

0

Project Description

1,2 & 3 BHK Residential Complex

Promoter Details

Type of Promoter Name E-mail Mobile Number
Company Saldanha Developers Pvt Ltd sales[at]saldanhagroup[dot]com 9822100574

Authorized Person Details

Name Mobile E-mail Address
Premnath Sawant 8308132200 p[dot]sawant[at]saldanhagroup[dot]com 302, Mathias Plaza, 18th June Road, Panaji, North Goa, Goa

Inventory Details

Type of Inventory No of Inventory Carpet Area
(Sq Mtr)
Area of exclusive balcony/verandah
(Sq Mtr)
Area of exclusive open terrace if any
(Sq Mtr)
Flats 12 856.36 230.04 0.0

Quarterly status of the project

No Of Inventory Completed
No Of Inventory Booked
No Of Inventory Sold
12 0 12

Associated Vendor


Project Architects

Architect Name Email Address Pin Code Year of Establishment
Siddharth D Naik ulysisgoa[at]gmail[dot]com 201-A Mathias Plaza, 18th June Road, Panaji 403001 1999

Structural Engineers

Engineer Name Email Address Pin Code Year of Establishment
Rajan L Prabhu Moye rajanmoye[at]gmail[dot]com 409/410, Block B , Saldanha Business Towers, Mapusa 403507 1996

External Development Work

Road System Water Supply Sewage and Drainage System Electricity Supply Transformer And Sub Station Solid Waste Management And Disposal
Government Authority     % Completed Government Authority     % Completed Self Development      % Completed Government Authority      % Completed Self Development      % Completed
Financial Year Financial Year Start Financial Year End Status Report Update Date
FY2019-2020 20-Feb-2019 19-Feb-2020 Saldanha Annette Grande.pdf 31-Dec-2020
FY2020-2021 20-Feb-2020 19-Feb-2021 Saldanha Annette Grande.pdf 18-Jan-2022
FY2021-2022 20-Feb-2021 19-Feb-2022 Image_002.pdf 07-Jan-2023
FY2022-2023 20-Feb-2022 19-Feb-2023 Saldanha Annette Grande.pdf 30-Sep-2023

Approval Taken From Reference No Date Updated On

Pending Approvals

Building Details

Completion Percentage













Facilities/Amenities

Proposed

Work Done Percent

Details







Please Select Street Lighting Yes/No









Document

Project Documents

Declaration

Photographs