Last Updated On   Thu Nov 21 14:48:18 IST 2024

Premnath Sawant
Authorized Person, Saldanha Green Valley - Phase II

Saldanha Green Valley - Phase II

Vaigui vaddo , Nachinola , North Goa

RERA Registration No. : PRGO01200940 Registration Type : Company

Date of Registration :

Tue Jan 21 13:14:40 IST 2020

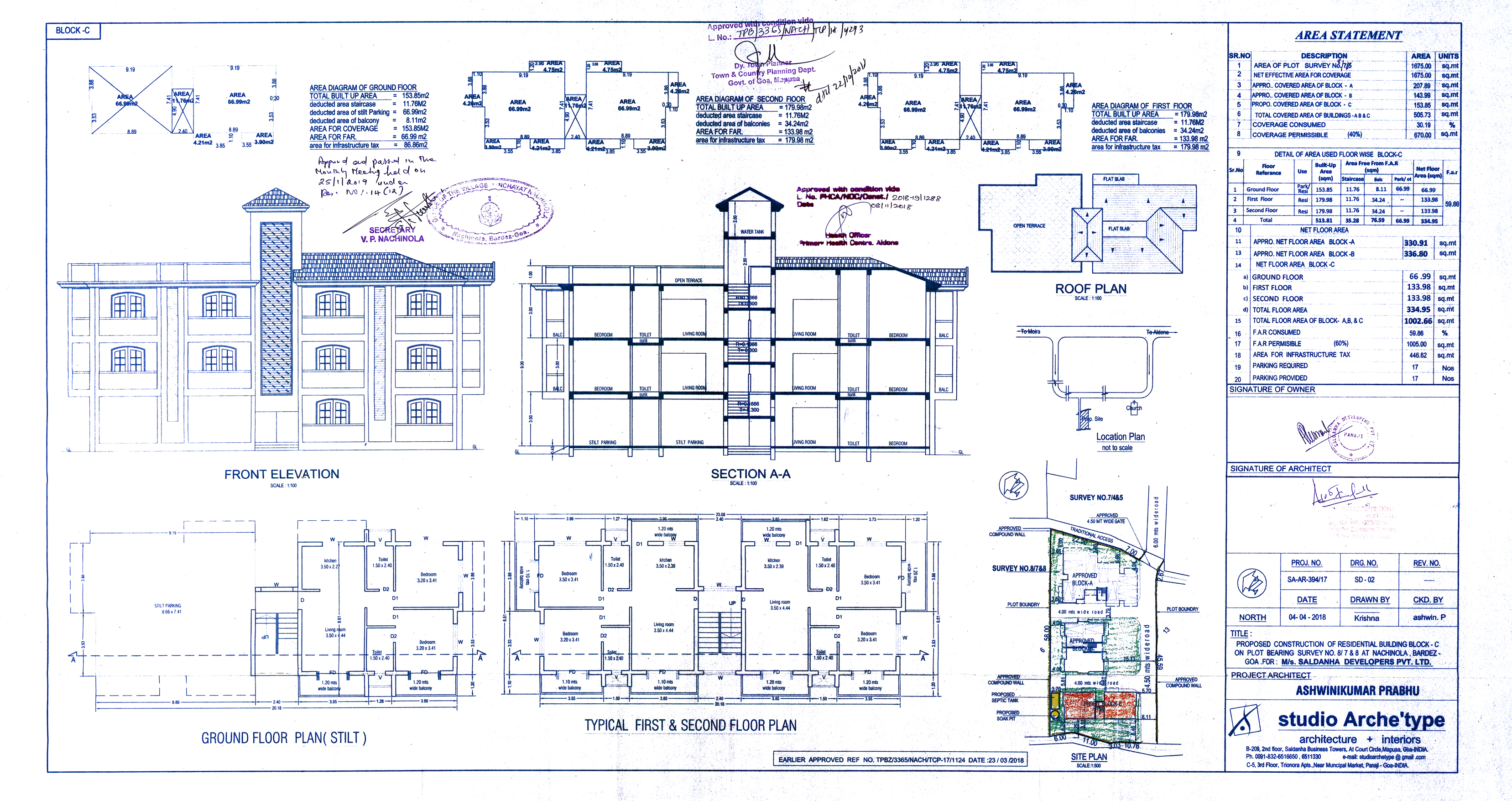
Total Area of Project Land :

1675.0

Project Type :

Residential/Group Housing

Project Start Date :

11-09-2019

Project End Date :

15-10-2023

Project Status :

Completed

Completion Certificate:

Occupancy Certificate:

Chalta No.:

not applicable

P.T. Sheet No:

not applicable

Total Open Area (Sq Mtr) :

0.0

Total Covered Area(Sq Mtr) :

505.73

State :

Goa

District:

North Goa

Village:

Nachinola

Estimated Cost of Project:

2636055.00

No. of Garage :

17

Area of Garage :

327.75

No. of Open Parking :

0

Area of Open Parking :

0.0

No. of Covered Parking :

17.0

Area of Covered Parking :

327.75

No. of Covered Parking Sold :

5

No. of Open Parking Sold :

0

Project Funding:

Public Financed

Project Description

1 & 2 BHK residential Apartments

Promoter Details

Type of Promoter Name E-mail Mobile Number
Company Saldanha Developers Pvt Ltd sales[at]saldanhagroup[dot]com 9822100574

Authorized Person Details

Name Mobile E-mail Address
Premnath Sawant 8308132200 p[dot]sawant[at]saldanhagroup[dot]com 302 Mathias Plaza,, 18th June Road, Panaji, North Goa, Goa

Inventory Details

Type of Inventory No of Inventory Carpet Area
(Sq Mtr)
Area of exclusive balcony/verandah
(Sq Mtr)
Area of exclusive open terrace if any
(Sq Mtr)
Flats 15 649.51 256.4 64.73

Quarterly status of the project

No Of Inventory Completed
No Of Inventory Booked
No Of Inventory Sold
15 0 6

Associated Vendor


Project Architects

Architect Name Email Address Pin Code Year of Establishment
Ashwinikumar Prabhu studioarchetype[at]gmail[dot]com Off. No. 2. 1st Floor, Alcon Chambers,, D.B Road, Panaji 403001 1999

Structural Engineers

Engineer Name Email Address Pin Code Year of Establishment
Paresh Gaitonde pareshg28[at]yahoo[dot]com Off. BT-15 & BT-7, 3rd Floor, Campal Trade Centre, Behind Military Hospital , Campal , Panaji 403001 1996

External Development Work

Road System Water Supply Sewage and Drainage System Electricity Supply Transformer And Sub Station Solid Waste Management And Disposal
Self Development     % Completed Government Authority     % Completed Self Development      % Completed Government Authority      % Completed Government Authority      % Completed
Financial Year Financial Year Start Financial Year End Status Report Update Date
FY2019-2020 10-Sep-2019 09-Sep-2020 Saldanha Green Valley - Phase II.pdf 31-Dec-2020
FY2020-2021 10-Sep-2020 09-Sep-2021 Saldanha Green valley Phase II.pdf 18-Jan-2022
FY2021-2022 10-Sep-2021 09-Sep-2022 Saldanha Green Valley Phase II.pdf 31-Dec-2022
FY2022-2023 10-Sep-2022 09-Sep-2023 Saldanha Green Valley- phase II.pdf 30-Sep-2023
FY2023-2024 10-Sep-2023 09-Sep-2024 Form 6 S GV Phase II 23-24.pdf 20-Nov-2024

Approval Taken From Reference No Date Updated On

Pending Approvals

Building Details

Completion Percentage













Facilities/Amenities

Proposed

Work Done Percent

Details







Please Select Street Lighting Yes/No









Document

Project Documents

Declaration

Photographs